Sauna ogrodowa Prestige
Specyfikacja
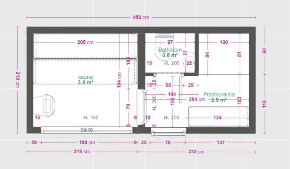
- wymiar zewnętrzny: szerokość 210 x 450 cm, wysokość 230 cm
- stalowa rama ocynkowana
- ściany: drewno konstrukcyjne C24 10x4,5cm
- izolacja z wełny mineralnej 10cm
- boazeria i ławki lipowe z części saunowej
- boazeria i ławka świerkowa w części przedsionka i w toalecie
- prysznic
- toaleta z umywalką
- drzwi ze szkła hartowanego
- duże hartowane przeszklenie
- elektryczny piec Huum Hive 11kW
- kamienie do pieca
- wentylacja
- dach blacha na rąbek, nowoczesny system klik oraz blacha w formie lamela
Gotowy, aby przenieść relaks do swojego ogrodu?
Zamów swój Saunę Prestige








